May 26, 2020
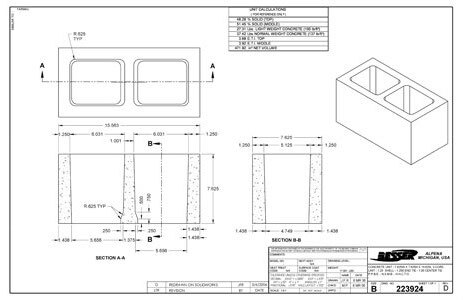
Monthly Mold Promotion: 7-5/8" x 7-5/8 " High x 15-5/8" Wide Mold
Besser currently has Mold Assembly 02-469606, for 7-5/8" wide x 7-5/8" high x 15-5/8" long 2 core unit numbers 02-223924 & 02-353094, in stock and ready to ship.
Mold Assembly Specifications:
- 1-1/4" face shell
- Permanent Plain Ends (PPBE) in 2 compartments
- Permanent Plain One End (PPOE) and Bubble Sash (SSBE) in 1 compartment
- Hand hold on center tie
- Designed for running on Besser V3-R, V3-12, and Dynapac Concrete Products Machines



Please contact Brian Budnik, Director of Mold Sales, at bbudnik@besser.com or +1.989.354.1012, for additional information about this, or any other mold for Besser and competitive model concrete products machines.