Order WEAR PARTS for summer production NOW; ask us about PARTS PODS!

March 25, 2021

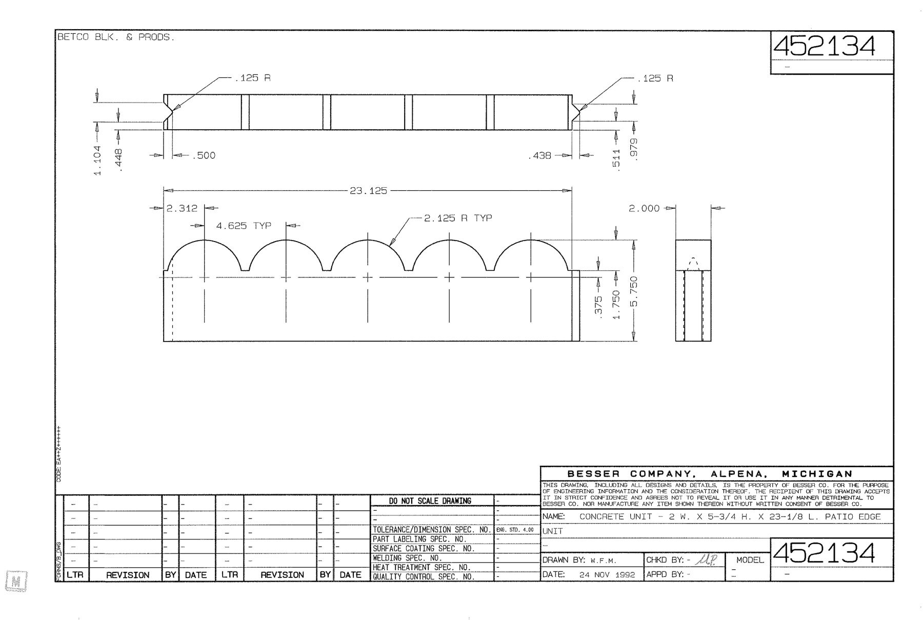
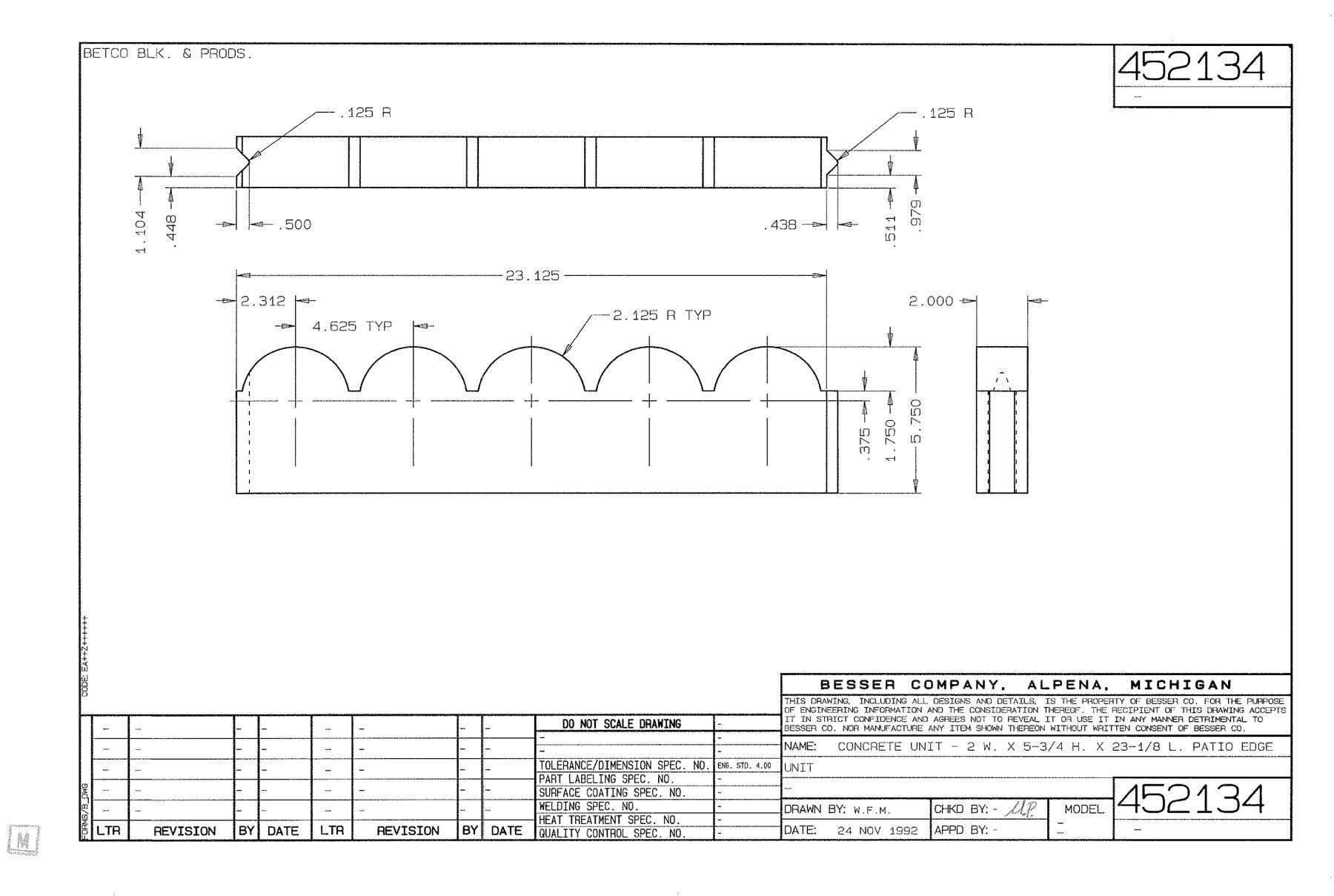
Straight Scallop Unit Mold Attachment

02 452134

We have a mold attachment (less vibrators, weights, and pallet guides) in stock to produce 2” wide x 5-3/4” high x 23-1/8” long straight scallop units.  Immediate delivery is available for this mold designed  that includes a heated stripper heated stripper head assembly that fits any Besser 3 at-a-time machine.

Please contact Brian Budnik, Director of Mold Sales, for more for additional information and pricing. You can reach him at bbudnik@besser.com or +1.989.354.1012.

Need help with equipment, parts, or support?

Let's Talk

+1.989.354.4111

Or find your sale representative contact information here.

Find Your Sale Representative